Retour aux biens
Immeuble à usage multiple à vendre à Philippeville

Splendide immeuble de rapport classé en excellent état général à vendre dans le centre de Philippeville, rue commerçante principale. Opportunité pour investisseurs. 6 appartements (2 appartements par étage) et 2 Rez-de-chaussée commerciaux + annexes + jardin . Le tout est loué.

1.120.000 €
  • 500 m² habitables
  • 395 m² de terrain

rue de france 21 - 5600 Philippeville Localiser sur la carte

Description

Superbe immeuble de rapport situé sur un terrain de 395 M2; IL est composé de 2 Rez-de-chaussée commerciaux + annexes + jardin et de 6 appartements (2 appartements par étage), (4 niveaux hors sol), le tout est loué. (revenus locatifs 72.700,00€ / an).
Ce bâtiment date du début du XXème siècle et a été totalement remis à neuf en 2009 par un architecte.
Ce bien allie élégance, rentabilité et emplacement stratégique.

En ordre au niveau urbanistique. Annexes à l’arrière des bâtiments réalisées en 2017. Accès à rue par l'arrière.
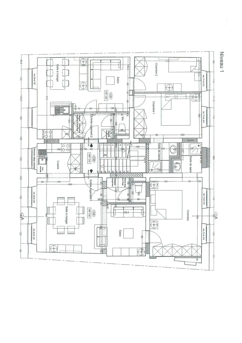
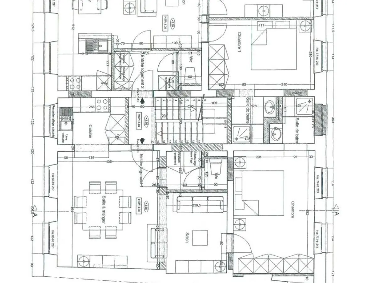
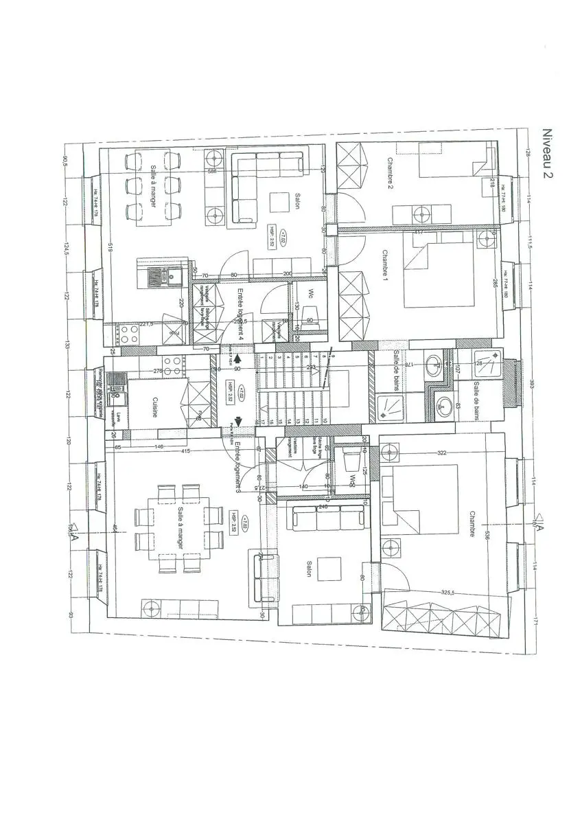
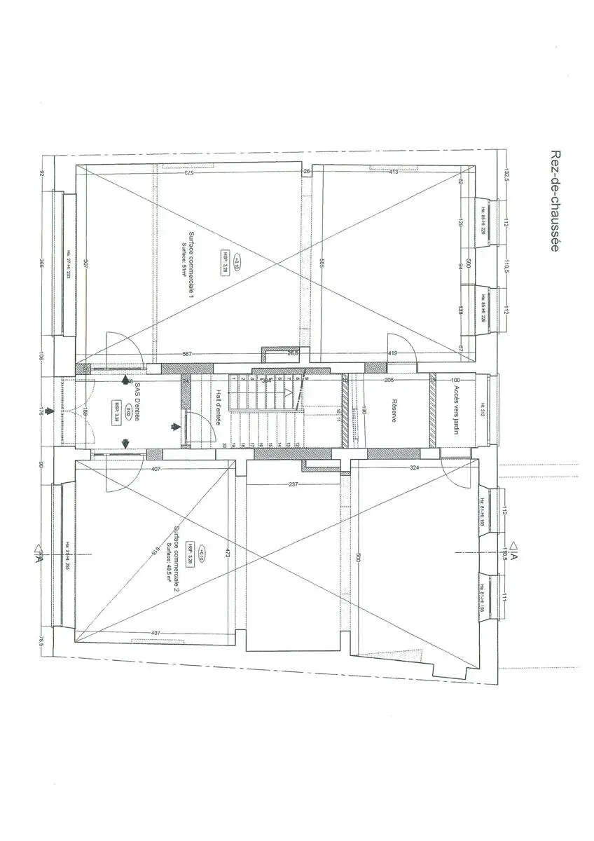
L’immeuble présente des finitions de haute qualité. Châssis PVC DV , chauffage et boiler électrique,ventilation double flux pour chaque appartement. Les châssis et portes des RDC sont en alu DV, Pompe à chaleur, Toiture et pignons en ardoises naturelles. L’immeuble est conforme au niveau de l’installation électrique et de l’incendie. En voici le descriptif: Il se compose de 6 appartements indépendants et de deux rez-de-chaussée commerciaux, chacun disposant de ses propres compteurs: hall qui dessert les deux rez-de-chaussée commerciaux, + sas d’entrée avec accès vers les 6 appartements.
Appartement 1er étage n° 21/3: Remis à neuf composé d’un hall, une pièce de séjour avec cuisine équipée ouverte, WC séparé, 1 buanderie, 2 chambres, 1 SDB ( salle de douche italienne). Equipements : Châssis PVC DV , Electricité conforme. Surface Habitable +/- 66M2. PEB C – 230/KWH/M2.AN
Appartement 1er étage n° 21/4: Remis à neuf composé d’un hall, une pièce de séjour avec cuisine équipée ouverte, WC séparé, 1 buanderie, 2 chambres, 1 SDB ( salle de douche italienne). Equipements : Châssis PVC DV , Electricité conforme. Surface Habitable +/- 68M2. PEB C – 250/KWH/M2.AN
Appartement 2ème étage n° 21/5: Remis à neuf composé d’un hall, une pièce de séjour avec cuisine équipée ouverte, WC séparé, 1 buanderie, 2 chambres, 1 SDB. Equipements : Châssis PVC DV , Electricité conforme. Surface Habitable +/- 66M2. PEB C – 202/KWH/M2.AN
Appartement 2ème étage n° 21/6: Remis à neuf composé d’un hall, une pièce de séjour avec cuisine équipée ouverte, WC, 1 buanderie, 2 chambres, 1 SDB. Equipements : Châssis PVC DV , Electricité conforme. Surface Habitable +/- 68M2. PEB C – 224/KWH/M2.AN
Appartement 3ème étage n° 21/7: Remis à neuf composé d’un hall, une pièce de séjour avec cuisine équipée ouverte, WC, 1 buanderie, 1 chambre, 1 SDB. Equipements : Châssis PVC DV, Electricité conforme. Surface Habitable +/- 47M2. PEB D – 337/KWH/M2.AN.
Appartement 3ème étage n° 21/8: Remis à neuf composé d’un hall, une pièce de séjour avec cuisine équipée ouverte, WC, 1 buanderie, 1 chambre, 1 SDB. Equipements : Châssis PVC DV, Electricité conforme. Surface Habitable +/- 48M2. PEB D – 334/KWH/M2.AN.
+ Au RDC: 2 superbes surfaces commerciales.
- Un RDC commercial à gauche avec +/-51 m2 de surface commerciale et +/-22 m2 de surface réserve et bureau; + cour et jardin + 70M2 caves. Excellent état. Loyer annuel 18600€.
- Un second RDC commercial à droite avec +/- 72M2 + annexes+ jardin.
Excellent état. Loyer annuel 17364€.
Parking à l'arrière, jardin.
Prix pour l'immeuble au N°21: Faire offre à partir de 1 120 000 €. (revenus annuels 72.700,00€). RC: 4370 €.
Possibilité d'acquérir en plus l'immeuble à côté au N° 19 loué depuis 2014. Loyer mensuel 1447€.
Prix pour l'immeuble N°19: 380000 €. RC: 1112€.
Prix pour les deux immeubles N°19 et N°21: Faire offre àpd de 1 500 000€.
Superbe opportunité. le tout est loué . A voir sans tarder. Gsm:0486/259520.


  • Référence 7238673
  • Catégorie Immeuble à usage multiple
  • Meublé Non
  • Jardin Non
  • Garage Non
  • Terrasse Non
  • Parking Non
  • Surface habitable 500m²
  • Surface du terrain 395m²
  • Disponibilité à l'acte
commerce à Philippeville
1.120.000 €

Contactez Fanny au 0486 25 95 20

Planifier une visite

Message envoyé avec succès.

Retour

Demande d'informations pour ce bien

Informations personnelles

Renseignements souhaités

 

Ce site utilise des cookies

Nous utilisons des cookies pour assurer le bon fonctionnement du site. Vous pouvez consulter nos mentions légales et notre politique de confidentialité pour plus d'informations.

Accepter les cookies Paramétrer les cookies