Retour aux biens
Rez-de-chaussée à vendre à Walcourt- Thy-Le-Château

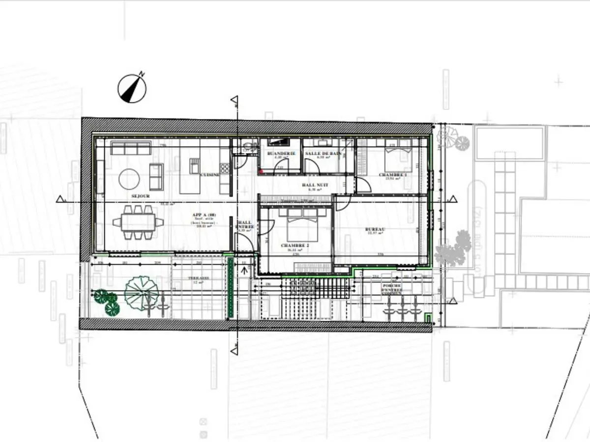
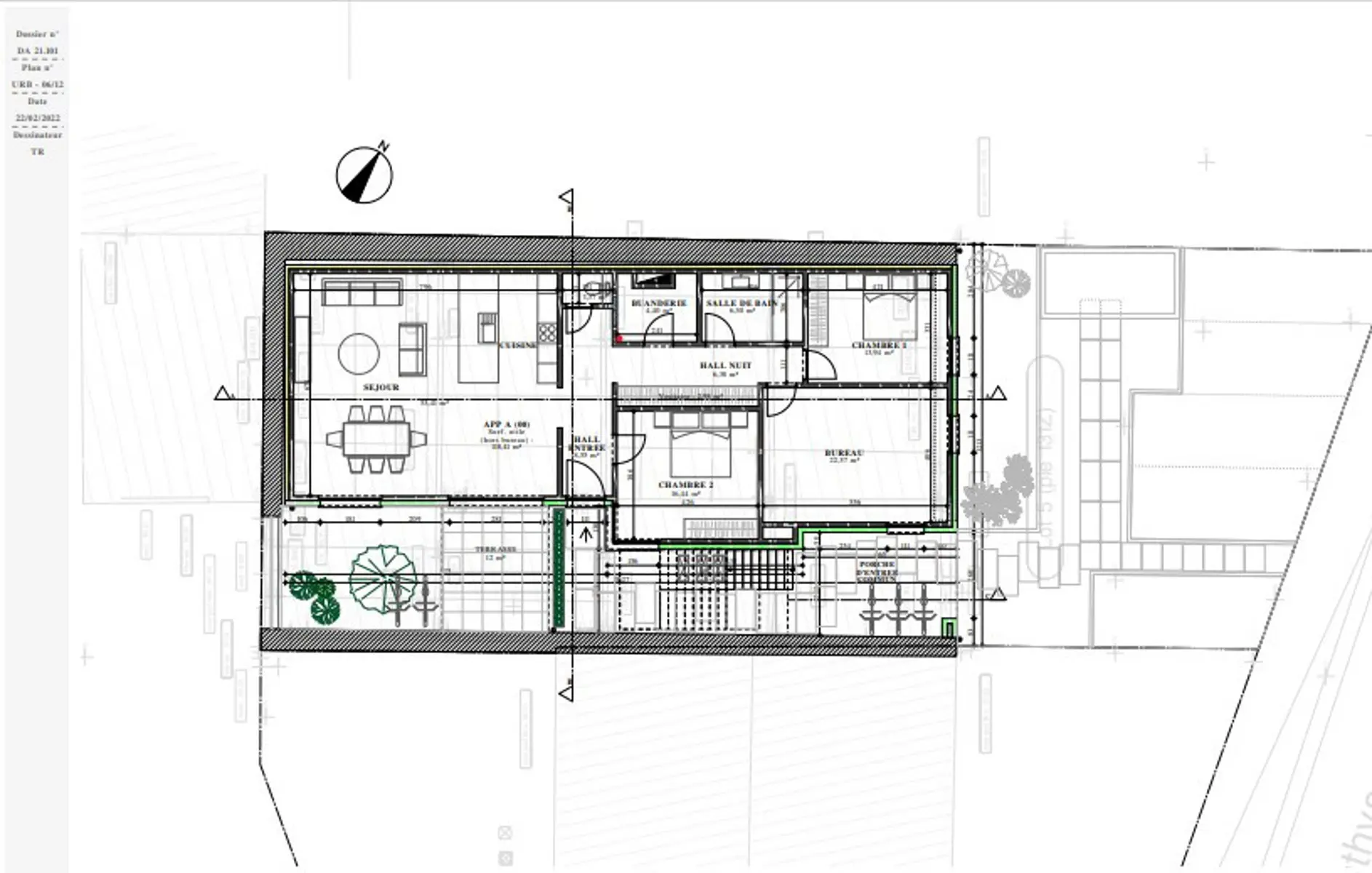
RDC de standing neuf de +/- 147M2 avec 2 entrées (idéal pour une profession libérale ou autre) avec 3 chambres, terrasse et parking érigé dans une ancienne grange. PEB Classé A.

280.000 €
  • 147 m² habitables
  • 1 salle de bains
  • 3 chambres

Rue des Monthys 34 - 5651 Walcourt- Thy-Le-Château Localiser sur la carte

Description

Coup de coeur assuré, à voir sans tarder: Superbe rez-de-chaussée de standing avec 2 entrées privatives (idéal pour une profession libérale ou autre). Ce splendide rez-de-chaussée neuf est érigé dans une grange transformée en 3 appartements. (terminé en mars 2025).
Situation exceptionnelle (rue calme dans un village paisible). Très bel espace habitable. Cet appartement se distingue par le haut niveau de construction et de finition tout en gardant le charme et l’authenticité de la grange, rénovation de qualité et finitions luxueuses et actuelles.
Appartement Passif : conçus pour offrir une efficacité énergétique, ce qui permet de réduire considérablement la consommation d’énergie.
PEB classé A N° 20241208007511. Consommation d'énergie primaire: 78 kwh/M2/AN.

En voici la composition : Appartement Rez-de-chaussée : (34-B-1) : Hall d’entrée, superbe pièce de séjour +/- 57M2 avec grande baie vitrée donnant sur la terrasse, espace cuisine ouverte à équiper, 1 WC séparé, 1 buanderie, Hall de nuit, 1 pièce salle de douche italienne, 1 chambre ou bureau +/- 22M2, 1 chambre +/- 17M2, 1 chambre +/- 14M2. 1 belle et grande terrasse. Surface habitable +/- 147 M2. Au niveau des extérieurs: Belle vaste terrasse, 1 place de parking et demi + 1 autre local commun à l’extérieur.

Equipements : .Chauffage par le sol, pompe à chaleur air /eau de marque VAILLANT, isolation, ventilation simple flux ( avec extracteur dans la cuisine, salle de douche, WC séparé et buanderie), Châssis ALU DV avec système d’aération, électricité réceptionnée, le tout carrelé avec superbe carrelage actuel, Appartement terminé en mars 2025. Il reste la cuisine et la salle de douche à équiper à choisir selon ses goûts.
(Possibilité de montage, placement accessoires meuble, vasque, douche de la salle de bains…).

Proche des commodités. A 500 mètres du centre du village. A 5 minutes du Complexe de Nalinnes Bultia et à 15 Km de Charleroi .

Prix: Faire offre à partir de 280 000 € (sous réserve d’acceptation du propriétaire). Gsm: 0486/259520.

  • Référence 6693676
  • Catégorie Rez-de-chaussée
  • Meublé Non
  • Nombre de chambres 3
  • Nombre de salles de bains 1
  • Jardin Non
  • Garage Non
  • Terrasse Oui (1)
  • Parking Oui (1)
  • Surface habitable 147m²
  • Disponibilité à l'acte
  • Parking extérieur Oui
appartement à Walcourt- Thy-Le-Château
280.000 €

Contactez Fanny au 0486 25 95 20

Planifier une visite

Message envoyé avec succès.

Retour

Demande d'informations pour ce bien

Informations personnelles

Renseignements souhaités

 

Ce site utilise des cookies

Nous utilisons des cookies pour assurer le bon fonctionnement du site. Vous pouvez consulter nos mentions légales et notre politique de confidentialité pour plus d'informations.

Accepter les cookies Paramétrer les cookies